Die IEC 61850 bestimmt, auf welche Weise die zahlreichen Geräte in Schaltanlagen für die Verteilung elektrischer Energie (Substations), wie Steuer- und Schutzeinrichtungen, beschrieben und wie Informationen über diese Geräte ausgetauscht werden. EB unterstützt als bislang einziges System die Norm sowohl bei der Anlagen-Strukturierung als auch beim Verständnis für die neutrale Substation Configuration Language (SCL).

Arne Peters
Public Relations
presse(at)aucotec.com
Herstellerneutral und zukunftssicher
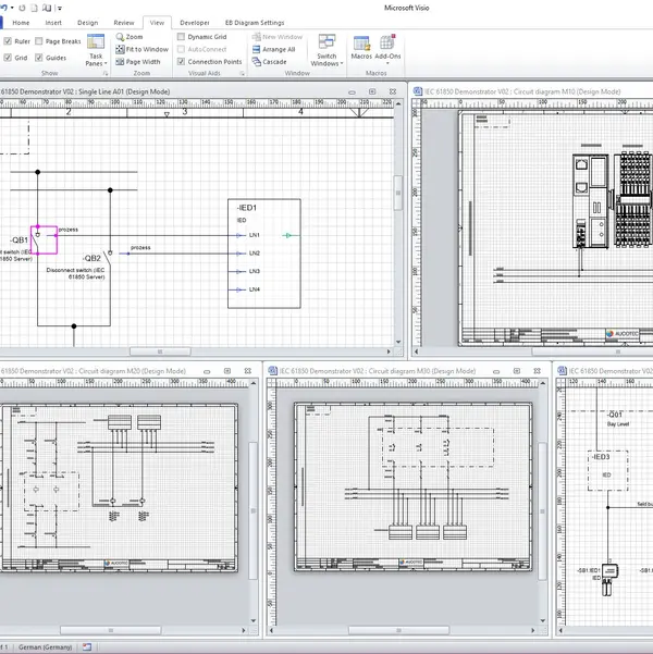
Das in EB integrierte Substation Configuration Tool (SCT) ist die konsequente Umsetzung der IEC-61850-Forderung nach einem herstellerneutralen Konfigurationswerkzeug auf SCL-Basis. Von der grafischen Eingabe der Primärtechnik über das Modellieren abstrakter Funktionsknoten und Datenobjekte bis zur Verknüpfung von Anlagenmodell und Systemkomponenten generiert das SCT normkonform die zielsystemunabhängigen Konfigurationsdaten für Stationsleitsysteme. Darüber hinaus ist EB in der Lage, ein normatives SCD File (Substation Configuration Description) zu generieren, das sämtliche Informationen über das Objektmodell der Anlage, von der Topologie bis zum Netzwerkplan, zusammenfasst. Das ermöglicht durchgängiges Systemengineering mit zukunftssicherer Archivierung der wertvollen Daten im genormten Format.
Objektorientierung macht‘s möglich
Durch EBs Objektorientierung bleibt zudem der digitale Zwilling, das Datenmodell des Umspannwerks lebendig, also aktuell. Er „verschwindet“ nicht wie meist üblich in Ordnern oder Dokumentenmanagementsystemen. Jedes Objekt existiert im Modell nur einmal, Änderungen sind jederzeit disziplinübergreifend präsent. „Dank der SCT-Integration gleichen sich die IEC-61850-fähigen Geräte automatisch ab “, sagt Michaela Imbusch, Produktmanagerin bei Aucotec. Das gewährleistet eine konsistente Kombination von elektrotechnischer Planung und normgerechter Beschreibung der Schaltanlage.
Kein tieferes Wissen notwendig
Eine weitere Besonderheit: „Dank EBs Virtualisierung der Anlage entstehen die logischen Knoten der einzelnen Geräte durch schlichtes grafisches Verbinden mit den Intelligent Electronic Devices“, erklärt Imbusch. „Daher müssen Anwender kein tieferes Wissen über die Norm besitzen.“ Denn in der Plattform sind alle wichtigen Informationen und Daten zu den einzelnen Geräten hinterlegt. Sie übernimmt auch hier alles Weitere für die Nutzer und Nutzerinnen.
Dank der synchronen Kopplung von SCT und EB sind redundante Eingaben und Datenpflege passé. Zudem können die Daten für die Spezifikationsdatei (.SSD) aus EB mit SCT abgerufen und in den IEC-61850-konformen Engineering-Prozess zur Anlagenkonfiguration übernommen werden. So wird die Prozesskette deutlich durchgängiger, vom Übersichtsschaltplan bis zu den Engineering-Details der Geräte. Abstimmungs-Fehler werden vermieden; auch das spart sowohl Zeit als auch Kosten.
Aucotec auf der Schutz- und Leittechnik am 21./22. Juni 2022: Stand 4
Downloads




